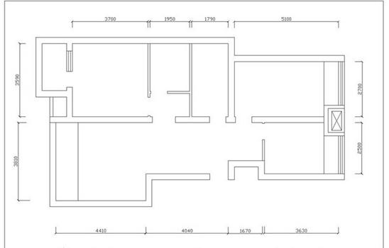
1、原始平面图是量房后画的第一张图纸,是画设计图纸的基础。主要标注出房型的尺寸、层高、原始管路及门洞等。而最先出猫腻的地方一般是原始图,如果尺寸量的不准确,人工费、材料费、管理费、设计费都会从这上面加出来。如果担心有猫腻,拿到图纸时可以自己用卷尺大概的量一下,一般尺寸不会相差很多的。

2、平面布置图是合理的规划平面布置图在很多人看来,是最考验设计师的设计水平的。的确,平面布置图的家具布置是从俯视角度去看的,各个区域的功能合理划分和人性化的考虑是平面布置图的精髓所在。当然,图纸中家具的尺寸是否准确,影不影响走动都是要考虑的。而有些经验不足的设计师往往就不会考虑到这

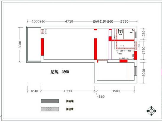
3、墙体改建图一般设计师用斜线表现拆除的墙体,实心的粗线条表示新砌的墙体,这样一般人都能看得出来墙体的改动了。值得注意的是,墙体的改动要参照原始的土建图,承重墙一般都是不能随意改动的。现在很多新房都是全框架结构,内墙的拆除还是比较安全的。很多人在装修的时候都喜欢将阳台打通,这个也不要忽视承重墙。

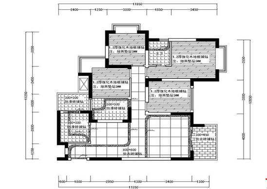
4、地面材质图一般需要标注地面所用的材质种类,是瓷砖还是地板,拼铺走向、图案及不同材料的分界说明。好的设计师绘制的地面材质图一般都能数出所用地砖的数量,这样就让预算做不了手脚,地板的需要量也可以再图上计算出来。当然,这些都是毛估的,实际的用量还是要把损耗考虑进去的,不过可以作

5、插座分布图很多业主在后期的使用中都会埋怨家里的插座数量太少了,这就是当初插座分布图没有考虑清楚。插座的位置、数量都会在这张图中绘制出来,当然,插座的安排还要避开门窗、家具,不然也是白装。一般来说,插座的安装是在保证够用的前提下,再适当留出一些备用的即可。有的装潢公司为了增加预算,会多增加插座,这点也是需要当心的。

6、弱电分布图音响线、电视线、电话线、网络线都是属于弱电的范围,布置的时候要考虑其相互之间的干扰性。现在很多家庭在装修的时候,都会考虑背景音乐、灯光控制等智能家居系统,最好能让专业的智能家居公司来设计,也会出具相关的布线图。

7、天花吊顶图这张图能看出天花吊顶的走向和顶部灯具的位置,图中应该详细标出吊顶的平面造型、尺寸以及距离地面的高度。一般来说,吊顶的尺寸标注方式有2中,一种是从地面到顶部的标高,一种是屋顶到吊顶下口的距离。

8、开关布置图开关布置图要注明房间离所有开关的位置及每个开关锁控制的电器、灯源等,同时要注明开关的种类,一面安装时混淆。有的时候开关布置图会与照明平面图画在一起,常用的灯可以多设置几路控制,能起到节能的作用。

9、给水布置图给水图上要标明卫生间、厨房等处的给、排水线路的平面布置图,还应该标注出冷热水的具体分布。如果有可能,尽量要装潢公司免费提供光盘影响记录,标注

10、节点详图施工中有一些关键部分的施工是具有难度的,设计到某些具体施工工艺的就需要绘制这些图纸,在途中标明造型尺寸,表明材料等。一般这种图纸给施工人员讲的比较多,设计师会为施工人员进行讲解的。

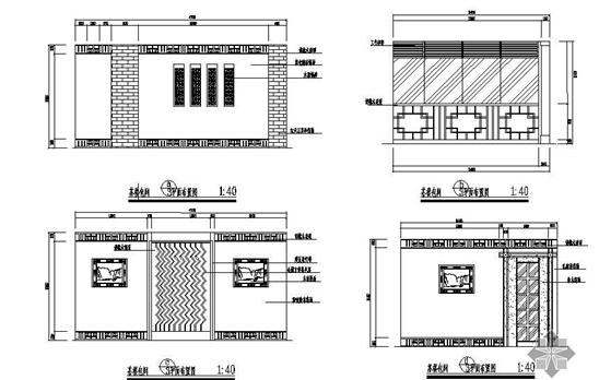
11、立面图立面图展示的是从水平的角度看到房间局部的剖面,设计师一般都是画出主要墙面的立面图,业主最好需要要求设计师将其他墙面的立面图,看立面图需要结合平面布置图,这样看起来才能
更清楚。

1;所有标注为智造资料网zl.fbzzw.cn的内容均为本站所有,版权均属本站所有,若您需要引用、转载,必须注明来源及原文链接即可,如涉及大面积转载,请来信告知,获取《授权协议》。
2;本网站图片,文字之类版权申明,因为网站可以由注册用户自行上传图片或文字,本网站无法鉴别所上传图片或文字的知识版权,如果侵犯,请及时通知我们,本网站将在第一时间及时删除,相关侵权责任均由相应上传用户自行承担。
[complaint:内容投诉]
智造资料网打造智能制造3D图纸下载,在线视频,软件下载,在线问答综合平台 » 在平面设计中室内装饰设计时都有哪些CAD施工图

