在进行机械设计时,我们往往先用三维软件建模,验证其装配性和干涉,然后利用CAD或CAXA等二维软件绘制二维工程图纸,便于图档管理和生产加工。
本文以连接件零件为例,介绍一下利用Pro/E软件三维建模和CAXA软件绘制工程图的过程。
一、先打开Pro/E软件,对零件进行建模。所建模型如下:

二、在Pro/E二维绘图模式下将零件转为所需的二维图,如下:

三、将该二维图另存为.dwg格式,并用CAXA打开,去掉多余的线条,并将所有线条设为粗实线。

四、新建一个CAXA图档,调入图框,设定好比例,然后将上图中的视图复制进这个新图档中,并调整好各视图位置,绘上中心线及剖面线等。

五、完善各视图的细节,如焊缝等。

七、标注好尺寸。标注尺寸时,点右键可调出尺寸标注对话框,可根据实际需要,选取尺寸标注时需要的一些符号,如直径符,公差等等。

八、标注焊接符号,点取工具栏中的焊接标注按钮,可调出焊接符标注对话框,可根据实际需要选取焊接标注所需要的符号。

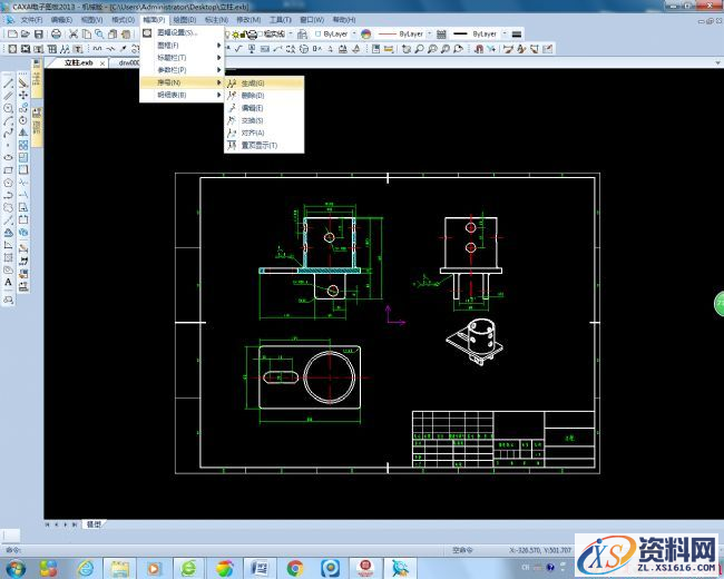
九,标注序号,在【幅面】-【序号】-【生成】菜单下可调出序号标注命令,给各零件标注序号。


十、序号标好后,在明细栏中标注好明细。

十一、最后形成如下所示图纸。

连接件工程图
免责声明:
1;所有标注为智造资料网zl.fbzzw.cn的内容均为本站所有,版权均属本站所有,若您需要引用、转载,必须注明来源及原文链接即可,如涉及大面积转载,请来信告知,获取《授权协议》。
2;本网站图片,文字之类版权申明,因为网站可以由注册用户自行上传图片或文字,本网站无法鉴别所上传图片或文字的知识版权,如果侵犯,请及时通知我们,本网站将在第一时间及时删除,相关侵权责任均由相应上传用户自行承担。
[complaint:内容投诉]
智造资料网打造智能制造3D图纸下载,在线视频,软件下载,在线问答综合平台 » 利用Pro/E软件和CAXA软件绘制连接件工程图(附图纸)(图文教程) ...
1;所有标注为智造资料网zl.fbzzw.cn的内容均为本站所有,版权均属本站所有,若您需要引用、转载,必须注明来源及原文链接即可,如涉及大面积转载,请来信告知,获取《授权协议》。
2;本网站图片,文字之类版权申明,因为网站可以由注册用户自行上传图片或文字,本网站无法鉴别所上传图片或文字的知识版权,如果侵犯,请及时通知我们,本网站将在第一时间及时删除,相关侵权责任均由相应上传用户自行承担。
[complaint:内容投诉]
智造资料网打造智能制造3D图纸下载,在线视频,软件下载,在线问答综合平台 » 利用Pro/E软件和CAXA软件绘制连接件工程图(附图纸)(图文教程) ...

