减速器在原动机和工作机或执行机构之间起匹配转速和传递转矩的作用,在现代机械中应用极为广泛。而由于其与新技术革命的发展紧密结合,因此加速器的性能高低也在一定程度上反映着工业基础的强弱。
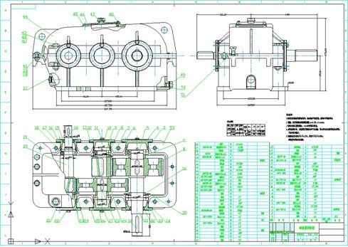
那么,怎样使用CAD软件绘制减速器装配图呢?今天,我们给大家带来了二级齿轮减速器装配图的绘制实例教程,首先,让我们来看减速器装配图的整体效果(如图1)。

图1
一、减速器结构分析
1、分析表达方案。此CAD减速器装配图采用主视图(局部剖视图)、俯视图(局部剖视图)和左视图三种视图来表达减速器箱体外观及内部轴与齿轮、轴与轴之间的传动关系。俯视图符合部件的工作状态,能清楚地表达零件的工作原理,以及内部结构和各零件间的装配关系。
2、分析装配图的结构和工作原理。该装配图由箱体、轴、轴承、齿轮、端盖螺钉等零部件组成。靠轴与齿轮之间的转动来传递扭矩,达到减速或者增速的目的。
二、绘图
1、图纸设置插入标准图框
(1)依次单击菜单栏【浩辰机械】-【图纸】-【图纸设置】,系统会弹出【浩辰机械图纸设置】对话框(如图2)。

图2
(2)选择图幅为A1,绘图比例1:2单击【确定】按钮(如图3)。

图3
2、CAD图层选择:选中【中心线】图层,然后切换到中心线图层。在合适位置绘制俯视图中低速轴、中间轴及高速轴的中心线(如图4)。

图4
3.绘制轴:以低速轴绘制为例,我们可以依次点击【浩辰机械】-【机械设计】-【轴类设计】来绘制低速轴(如图5)。

图5
4、在轴整体设计对话框中依次输入【轴D】和【L】,并分别点击【接收】,接收完毕点击【分段编】弹出【轴分段编辑】,进行轴进一步编辑(如图6)。

图6
5.输入相关设计数据,画出整轴(如图7)

图7
6、使用【轴设计】命令,重复步骤3、4、5绘制出中间轴和高速轴,在相应点插入轴(如图8)。

图8
这样,我们二级齿轮减速器装配图的基本构件就绘制完毕了,通过此次绘制,我们发现,与使用传统的CAD软件绘制相比,使用浩辰CAD2011机械软件绘制具有以下优点:
1、通过使用浩辰CAD机械2011的【轴设计】功能,我们比其他CAD软件绘图使用中心线【偏移】【修剪】等命令重复画图提升80%效率。
2、点击软件功能中的【系列化图库设计系统】,可以快速设置参数、插入零件库,在绘制螺钉螺母的时候同样节约绘图时间。
3、使用【图框】、【序号标注】【明细表生成】等浩辰CAD2011特有的智能化功能进行作图,比单纯使用CAD软件绘制编辑方便很多。
1;所有标注为智造资料网zl.fbzzw.cn的内容均为本站所有,版权均属本站所有,若您需要引用、转载,必须注明来源及原文链接即可,如涉及大面积转载,请来信告知,获取《授权协议》。
2;本网站图片,文字之类版权申明,因为网站可以由注册用户自行上传图片或文字,本网站无法鉴别所上传图片或文字的知识版权,如果侵犯,请及时通知我们,本网站将在第一时间及时删除,相关侵权责任均由相应上传用户自行承担。
[complaint:内容投诉]
智造资料网打造智能制造3D图纸下载,在线视频,软件下载,在线问答综合平台 » 浩辰CAD2011机械_(17)减速器装配图(图文教程)

